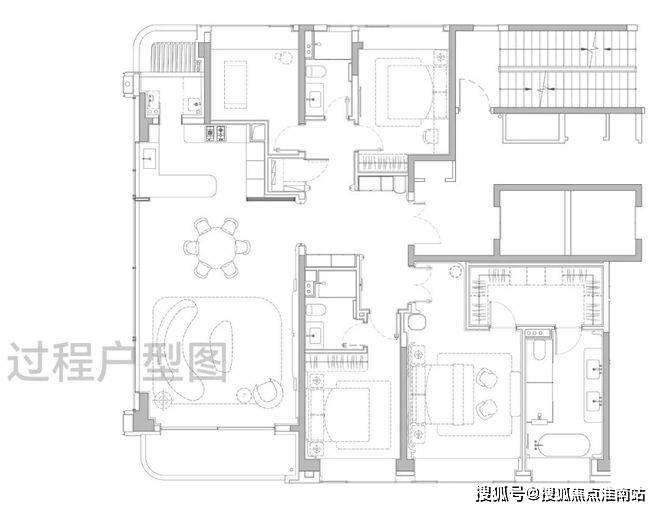
棋牌平台,棋牌官网网站,棋牌游戏APP下载准1梯1户设计,私享电梯厅独立入户,经典飞机户型,三开间朝南,南北通透,动静分区,通风采光俱佳。
中粮大悦城上海第五座壹号系,“世界S湾壹号作品”——【中粮·北外滩壹号】开盘热卖中!
独立玄关做足私密性和仪式感;LDKB一体化设计的客餐厅面积达到约55㎡,方正大气。
主卧套房尺度豪奢,可供业主配置步入式衣帽间,卫生间做到双台盆+大浴缸+独立淋浴的顶配,尊崇感十足!

边厅面积超过50㎡,给一家人提供了阔绰的交流空间;约270°环幕景观设计,带来极好的采光,并且高区可以直面陆家嘴城市天际线+黄浦江景观,视野相当震撼!
主卧大套房设计带超大主卫和衣帽间,面积约50㎡,尺度感与市面上近300㎡的顶豪拉平。
在材质选用上,延续了壹号系的高端标准,大量运用奢石、高难度弧形工艺以及国内外顶尖品牌。
如宝格丽大理石打造的西厨岛台、铂浪高的净水三合一水龙头和一体式大水槽、霍尼韦尔的前置过滤器、全屋软水以及末端净水器系统、来自意大利法罗力燃气热水器、德国唯宝卫浴、当代龙头及花洒......还有全屋华为智能家居系统配置。这一套组合,是真正意义上的顶豪序列配置!
2023年9月5日,大悦城控股上海大区公司通过上海联交所成功竞得上海市虹口区北外滩116街坊地块(即中粮北外滩壹号)。地块位于北外滩红线内,靠近大连路地铁站,与外滩、陆家嘴共同构成上海“黄金三角”。


项目总用地面积约23849.2平方米,容积率1.95,总计容建面4.65万㎡,是上海市中心罕见的无商办、无15%自持住宅、无5%保障房的纯住宅项目。
整体由一栋24F高层住宅和风貌别墅组成。高层共90套、产品面积段约180-228m²,风貌别墅共118套,产品面积段约130-350m²,其中主力建面约m²(占比约83%)

,高层主体以仿红砖陶板+古铜色铝板+白色石材+玻璃幕墙的高标准结合,来完成建筑的美学表达。

风貌别墅则复刻海派石库门的韵味,但不同于大多数风貌别墅的格栅小花窗设计,「中粮·北外滩壹号」大幅增加窗墙比,赋予相对沉闷里的里弄建筑,更通透、更明亮的特质!
约1800㎡的私享顶奢会所。按户均占有会所资源计来算,这在当今顶豪圈是顶尖的水平。
目前看到的效果图,体现出一股醇正的老钱世家风,设计品位远超市场同类豪宅。


瑜伽健身区,大幅落地窗引入自然光线,天花的格栅造型,地面的复古拼花木地板,都透出浓厚的海派风情。
因为这是中粮大悦城的壹号系,珠玉在前,小编完全不担心会所未来兑现的效果,甚至已经很期待看到未来会所开放展示的那一刻。
景观方面,设计了「八大主题场景」,从百年梧桐下的静谧巷道,到充满未来感的艺术庭院,共同构成一个鲜活立体的生活剧场。

交通方面:项目周围环绕三条地铁,步行约360米到4、12号线号线(在建)提篮桥站。
地铁出行到人广和陆家嘴都只需要4站。未来,随着在建的南北大动脉19号线贯通,可以直达世博、前滩等多个核心滨江段。

自驾上,项目往北约300米就是北横通道,往南车行约1公里,就是新建路隧道和大连路隧道直达浦东。从项目到陆家嘴、北外滩和外滩都在10分钟左右。


半径3km内,还可以同时覆盖外滩、陆家嘴、苏河湾等“黄金三角”的繁华商业!

周边学府众多,优质教育资源密集。北侧的长青学校是老牌的九年一贯制公办重点,南侧的上海中学国际部是知名民办名校,距离新华初级中学
(常年四校八大预录人数上百),新复兴初级中学,这两所虹口的顶尖民办学校也都在直线KM内(新房不承诺对口学校,具体以实际为准)。

周边有复旦大学红房子妇产科医院,守护着每一个家庭的人生重要时刻。、以及三甲新华医院、上海市第一人民医院为健康生活保驾护航。

联系我们
电话:400-123-4567
手机:138 0000 0000

公司地址
地址:广东省广州市天河区88号

公司名称
棋牌平台